ياس إيكرز
ياس إيكرز هو مجمع ساحلي فاخر في جزيرة ياس بأبوظبي. ينقسم المجمع إلى مجمعين فرعيين، رويال أوك وذا سيدارز، ويضم أكثر من 1000 وحدة سكنية، ونادي جولف، وشاطئًا خاصًا.
صُمم مشروع ياس إيكرز ليكون مجمعًا سكنيًا متكاملًا يضم مجموعة متنوعة من المرافق، بما في ذلك مراكز التسوق والمرافق الطبية والتعليمية والمطاعم والحدائق والملاعب الرياضية. وقد نفّذت شركة الدار العقارية هذا المشروع.
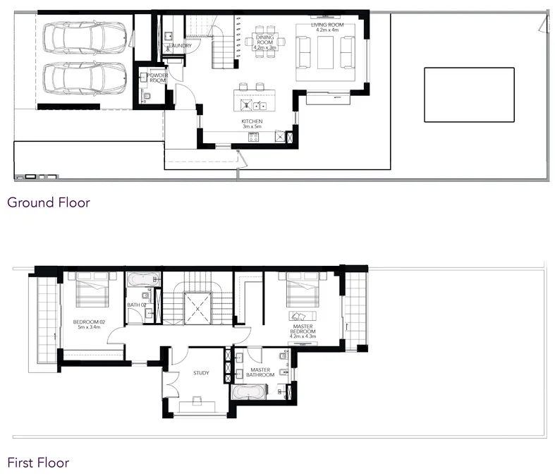
تشمل عقارات المجمع منازل تاون هاوس من غرفتين إلى أربع غرف نوم، وفيلات من أربع إلى ست غرف نوم. تتراوح مساحات الوحدات السكنية بين ٢٣٣٠ و٧١٣٦ قدمًا مربعًا. جميع الوحدات السكنية مزودة بحدائق خاصة، ومواقف سيارات، وشرفات أو تراسات واسعة مُحوّلة إلى مناطق جلوس، ومساكن منفصلة للموظفين. كما تضم بعض الوحدات مسبحًا خاصًا.

معلومات المشروع
معرض الصور



الموقع
تتصل جزيرة ياس بالبر الرئيسي لإمارة أبوظبي عبر جسرين يمتدان على شارع الفلاح وشارع الشيخ خليفة بن زايد. ويقع مجمع ياس إيكرز بجوار هذه المواصلات، مما يوفر الوصول إلى مناطق أخرى ومراكز أعمال في الإمارة. ويمكن الوصول إلى مطار أبوظبي الدولي في غضون 20 دقيقة تقريبًا.
على بعد 15-20 دقيقة بالسيارة توجد مناطق الجذب السياحي مثل:
- ياس مول ونافورة ياس مول الراقصة
- عالم فيراري
- ياس ووتروورلد أبوظبي
- وارنر براذرز وورلد أبوظبي
- دو أرينا
- عالم وارنر براذرز أبوظبي
- حديقة بوابة ياس













